Music REcording, Film/TV, and
Post-production Complex FOR LEase
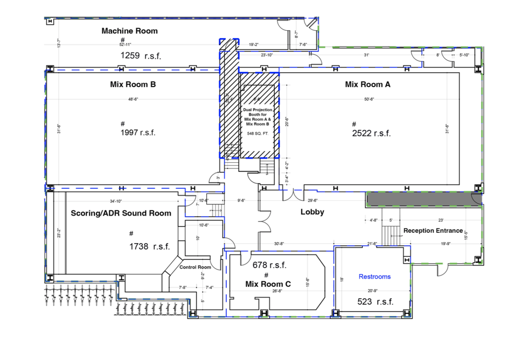
MUSIC RECORDING FILM/TV POST PRODUCTION Multi-mix and recording room complex with lots of equipment. Super high-end studio build out as well as offices with great views.
Term can be 1 to 10 years for an extremely reasonable rate.
Contact for more information!












