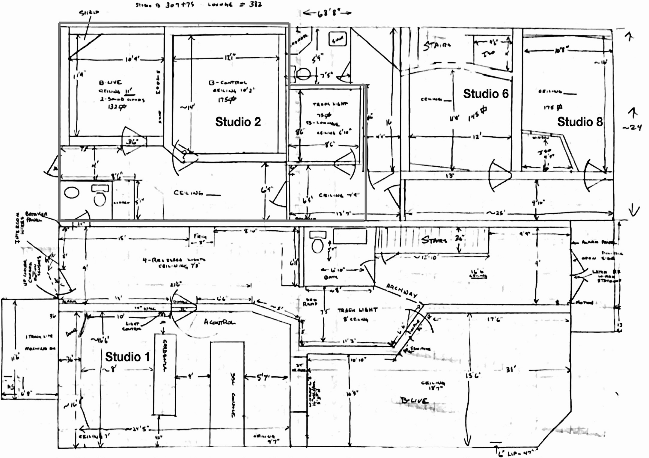
COMMERCIAL Two-Story Recording Studio Complex FOR SALE
Exclusively offered by Entertainment Real Estate Services, this professionally built two-story recording studio complex features a flagship control room, isolated live room, four production suites with iso booths, spacious contemporary lounges, and office. Built for modern music and post production workflows, it combines top-tier acoustics with sharp, elevated design. Ideal for use as a label headquarters, artist-owned creative compound, or boutique post-production facility.
Please call or text Bruce Stratton at 310-422-2283 for more information.


































